Kronach

Barrierefreie Penthouse-Wohnung mit XXL- Terrasse in Kronach

Objekttitel

Barrierefreie Penthouse-Wohnung mit XXL- Terrasse in Kronach

Lage

Sie wohnen hier in einer der besten und begehrtesten Wohnlagen in der Kreisstadt Kronach. Die Kreisstadt hat in den letzten Jahren enorm an Attraktivität gewonnen und zählt zu den Vorzeigestädten Oberfrankens. Ein hoher Wohnkomfort ist Ihnen in dieser begehrten Lage garantiert.

In dieser exklusiven Wohnanlage sind Sie medizinisch mit der Helios Klinik als unmittelbarer Nachbar bestens versorgt. Direkt in der Nähe sind Lebensmittelgeschäfte, Großbetriebe, Ärzte, Schulen und vieles mehr.

Ausstatt_beschr

- große umliegende Dachterrasse
- Fenster und Fenstertüren Kunststoff mit 3-fach Wärmeschutzverglasung
- elektrischer Sonnenschutz an allen Fenstern
- Tageslichtbad
- Fußbodenheizung
- Einbauküche mit Siemens Einbaugeräten
- Aufzug
- Stellplatz vorhanden

Objektbeschreibung

Willkommen in Ihrem neuen Zuhause!
Diese elegante Penthouse-Wohnung zur Miete bietet Ihnen modernsten Wohnkomfort in einer begehrten Lage von Kronach. Erbaut im Jahr 2021, präsentiert sich die Wohnung mit einer großzügigen Wohnfläche von ca. 94 m² und zusätzlicher Nutzfläche von ca. 8 m².

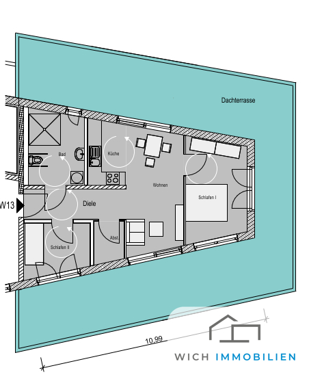
Die Wohnung besticht durch einen gut durchdachten Grundriss mit insgesamt drei Zimmern, darunter zwei mögliche Schlafzimmer, die ausreichend Platz für Ihre individuellen Gestaltungswünsche bieten. Das helle Badezimmer ist mit einer großen, barrierefreien Dusche ausgestattet und sorgt für ein besonderes Wohlfühlerlebnis.

Genießen Sie entspannte Stunden auf der weitläufigen Terrasse, die zu jeder Jahreszeit für frische Luft und Sonne sorgt. Die Einbauküche fügt sich nahtlos in den offenen Wohnbereich ein und ist bereit für Ihre kulinarischen Experimente.

Praktikabilität trifft hier auf Komfort: Ein Aufzug im Gebäude und ein vorhandener Stellplatz garantieren eine bequeme Erreichbarkeit und machen das Wohnen in dieser hochmodernen Immobilie besonders angenehm.

Das Penthouse ist spätestens ab dem 01. Februar 2026 verfügbar – eine einmalige Gelegenheit, in einem stilvollen, zeitgemäßen Ambiente zu leben. Entdecken Sie das Leben in einer Stadt, die Tradition und Moderne harmonisch vereint.
Überzeugen Sie sich selbst von den Vorzügen dieser exklusiven Immobilie und vereinbaren Sie noch heute einen Besichtigungstermin. Wir freuen uns darauf, Ihnen die Wohnung persönlich vorstellen zu dürfen!

Sonstige_angaben

Es liegt ein Energiebedarfsausweis vor.
Dieser ist gültig bis 26.12.2034.
Endenergiebedarf beträgt 79.50 kwh/(m²*a).
Wesentlicher Energieträger der Heizung ist Gas.
Die Energieeffizienzklasse ist C.

Die Einbauküche wird monatlich separat für 30,--EURO mit vermietet.

Kosten

Kaltmiete
700,00 €
Warmmiete
990,00 €
Nebenkosten
130,00 €
Heizkosten
100,00 €
Kautionshinweis
3- Kaltmieten
Provision
Provisionsfrei inkl. MwSt.

Ausstattung

Ausstattungskategorie
Standard
Küche
Einbauküche
Bodenart
Fliesen, Laminat
Fahrstuhl
Personen
Unterkellert
Keller

Energiepass

Energieausweistyp
Bedarfsausweis
Gültig bis
26.12.2034
Energiebedarf
79.50
Energieträger
GAS
Energieeffizienzklasse
C
Geltende EnEV
2014
Gebäudeart
Wohngebäude
Energiebedarf 79.5 kWh/(m²*a)
Energieskala

Flächen

Wohnfläche
93,7 m²
Anzahl Zimmer
3,0
Anzahl Schlafzimmer
2,0
Anzahl Badezimmer
1,0
Anzahl Stellplätze
1,0
Anzahl Terrassen
1,0

Zustand

Baujahr
2021
Zustand
Gepflegt
Frei ab
01.02.2026
Nach oben